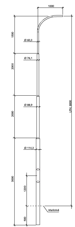
Pylväs puistovalaisimille.
Valmistettu vaatimuksen SS-EN 40-5 mukaisesti.
Kuumasinkitty SS-EN/ISO 1461:2009 mukaisesti.
Varustettu SS 2874 mukaisella luukulla
Luukku 1200mm korkeudella asennuspinnasta.
Luukun leveys 85 mm.
VKM= Valaisimen korkeus maanpinnasta: 8m.
Upotus jalustaan: 500 mm

Tällä hetkellä ei löydy tuotearvioita.
Kirjoita arvio